中望水暖電工程設計整體解決方案(包含中望暖通、中望給排水、中望電氣,以下簡稱“中望水暖電”)集成了建筑設計系統中的暖通、給排水和電氣的專業CAD設計軟件,摒除了傳統的設備軟件分開的模式,極大地方便工程師進行各專業之間的交互和CAD協同設計。
其中,廣受暖通工程師認可的中望暖通,涵蓋了采暖、空調水路、風管、多聯機、負荷計算、水力計算、焓濕圖等內容功能,真正實現了采暖通風空調CAD設計與計算一體化,能夠幫助提高設計效率。下面,通過繪制一張“單管--異程采暖”的CAD圖紙來介紹采暖設計這個菜單的詳細功能。
Step1: 建筑模型
中望水暖電兼容建筑8.5版本的實體,因此我們可以直接打開建筑模型作為設計底圖,也可使用中望水暖電嵌套的建筑功能進行底圖的修改與創建。下圖一是通過建筑中的功能繪制出來的建筑圖形。

圖一/使用中望水暖電繪制建筑CAD圖紙
Step2:布置散熱器
通過采暖菜單中的“散熱器”功能,軟件提供有三種方式布置散熱器,分別是“任意布置”、“沿墻布置”、“窗中布置”。我們選擇“窗中布置”,然后設置好散熱器的參數,框選圖形,就可以非常方便的將散熱器布置在窗子的中間,如下圖二所示。

圖二/中望暖通快速布置散熱器
Step3:繪制立管,散立連接
使用“采暖立管”功能則可快速布置立管,操作非常簡單編輯:點擊采暖立管--供水立管,即可繪制所需立管圖形。同時,“散立連接”功能提供了多種散熱器和立管的連接方式,工程師可以按照個人習慣任意選擇。
我們選擇“順流式”,然后選擇圖形中的散熱器和立管,就可以實現散立連接。最終的效果如下圖三所示。

圖三/中望暖通實現散立連接
Step4:繪制采暖管線
在繪制圖形之前,我們需要將當前的圖紙復制粘貼生成兩張圖紙,因為采暖管線的繪制分為供水和回水,后續還要出系統圖,所以我們提前將供水和回水的兩個部分繪制出來。
接下來使用“采暖管線”的功能,選擇“供水干管”就可以將供水管快速繪制在圖形中。同樣,選擇“回水干管”即可將回水管繪制在復制的第二個圖形中,如下圖四所示。

圖四/中望暖通繪制暖管線
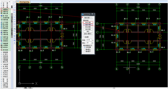
Step5:連接立管干管
與“散立連接”方式相似,通過“立干連接”功能將剛才兩幅圖中的立管和干管進行連接,如下圖五所示。要注意的是,我們繪制的是“單管--異程采暖”形式的,所以在進行完連接之后,需要將圖中粉色框選的兩根管線刪除。

圖五/中望暖通“立干連接”功能
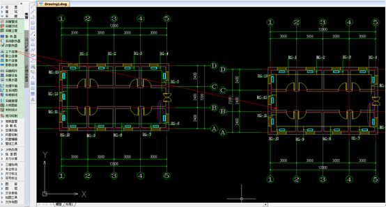
Step6: 生成系統圖
完成以上的操作之后,幅面中就有三個圖形,一個是標準層,一個是供水,一個是回水。現在就可以開始最后的操作了——生產系統圖。選擇“生系統圖”功能,按照軟件提示,先選擇回水層,然后通過“添加層”選擇標準層,最后選擇供水層。有一點需要注意:選擇的基點每張圖中要相同,并且作為標準層,我們可以更改層數。最后點擊“確定”按鈕,即可生產如下圖六所示的系統圖了。

圖六/中望暖通生成的系統圖
有一點需要注意,系統圖生成之后,往往還進行采暖水力計算。在系統圖中提取分支,通過水利設計計算,能夠顯示最不利管線、輸出計算書、更新原圖、繪制原理圖等。

圖七/中望暖通進行采暖水力計算
在實際的設計過程中,所有的圖形都涵蓋三維屬性,因此,我們可以通過不同的視口進行圖形的觀察,來看到實際的三維效果,如下圖八所示。

圖八/中望暖通查看CAD圖紙三維效果
以上只是中望暖通采暖設計的一個菜單功能,它可以幫助設計師快速繪制出所需的圖紙。更具價值的是,作為中望CAD工程建設行業整體解決方案的組成部分,中望暖通不僅與中望建筑、結構、電氣、給排水等專業模塊無縫兼容,還完美兼容市面上其他工程建設各專業設計軟件,徹底解決圖紙兼容性低、數據交互性差等工程建設領域中諸多阻礙CAD協同設計的難題,實現設計成果無障礙交互使用。
· 先鋒匯聚|8月27日-28日廣州,邀您共赴工業軟件國際盛會2025-08-14
· 中望軟件數智化轉型峰會廈門站成功舉辦,“CAD+”戰略賦能福建工業可持續創新2025-07-31
· 中望軟件西安峰會圓滿召開,“數智賦能”助推西部工業轉型升級2025-07-02
· 中望軟件杭州峰會成功舉辦,“CAD+”賦能浙江智造縱深發展2025-06-25
·中望3D 2026全球發布:開啟設計仿真制造協同一體化時代2025-06-13
·中望軟件攜手鴻蒙、小米共建國產大生態,引領工業設計新時代2025-06-01
·中望軟件2025年度產品發布會圓滿舉行:以“CAD+”推動工業可持續創新2025-05-26
·中望CAD攜手鴻蒙電腦,打造“多端+全流程”設計行業全場景方案2025-05-13
·玩趣3D:如何應用中望3D,快速設計基站天線傳動螺桿?2022-02-10
·趣玩3D:使用中望3D設計車頂帳篷,為戶外休閑增添新裝備2021-11-25
·現代與歷史的碰撞:阿根廷學生應用中望3D,技術重現達·芬奇“飛碟”坦克原型2021-09-26
·我的珠寶人生:西班牙設計師用中望3D設計華美珠寶2021-09-26
·9個小妙招,切換至中望CAD竟可以如此順暢快速 2021-09-06
·原來插頭是這樣設計的,看完你學會了嗎?2021-09-06
·玩趣3D:如何巧用中望3D 2022新功能,設計專屬相機?2021-08-10
·如何使用中望3D 2022的CAM方案加工塑膠模具2021-06-24
·CAD小技巧:使用oops恢復誤刪除對象2018-04-09
·CAD不顯示打印對話框怎么辦2024-03-29
·CAD特性欄如何隱藏2025-05-22
·CAD最簡單的編輯命令:移動命令2018-03-23
·CAD如何繪制圓錐?2020-03-27
·調整CAD直線長度的方法2021-11-12
·如何運用cad來等分圓形2017-06-02
·CAD選擇填充時邊界也一起選中了?2021-06-22





