什么是CAD中的UCS(用戶坐標系)
CAD軟件提供了一個虛擬的二維和三維空間,這個空間需要一個基準,這個基準就是世界坐標系(WCS)。但在有些特殊情況下,在世界坐標系下繪圖并不是很方便,因此用戶會根據自己的需要設置一個新的參考坐標系,這個坐標系就叫用戶坐標系(User Coordinate System),簡稱為UCS。在CAD中輸入UCS命令,就可以根據不同的條件設置用戶坐標系,通常有下面幾種方式:設置新的坐標原點,旋轉某個軸向,以某個對象為基準設置坐標系,以三維模型的某個面來定義UCS方便后續建模。下面給大家介紹幾種UCS坐標系的應用。
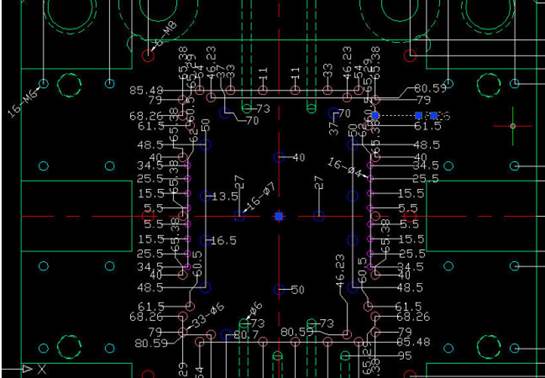
一、調整坐標原點,方便進行坐標標注
在一些機械零件圖紙中會有大量的孔或其他圖形特征,設計人員通常的做法是在圖形中確定一個基點,將UCS原點調整到基點處,然后利用坐標標注來進行尺寸標注。如果結合連續標注,標注會非???,而且圖面也很整齊,如下圖所示。

在上圖中可以看到UCS坐標原點被定為到中心線的交點處,當然也可以將圖形整體移動,讓中心線的交點正好位于世界坐標系的原點,但如果一張圖紙中有多個零件圖形就只能用UCS了。
二、調整坐標方向,方便繪制傾斜圖紙
一些小區和市政規劃圖是傾斜的,如下圖所示。

在圖紙傾斜狀態下進行繪圖或出圖都很不方便,因此通常會將坐標系進行旋轉,將圖形轉成正向?;静僮鞣椒ㄈ缦拢?/p>
1、輸入UCS命令,回車。
2、輸入Z選項,輸入需要旋轉的角度,將UCS沿Z周旋轉一定角度。
3、輸入PLAN命令,回車,將視圖切換為UCS的平面視圖,如下圖所示。

推薦閱讀:機械CAD
· 先鋒匯聚|8月27日-28日廣州,邀您共赴工業軟件國際盛會2025-08-14
· 中望軟件數智化轉型峰會廈門站成功舉辦,“CAD+”戰略賦能福建工業可持續創新2025-07-31
· 中望軟件西安峰會圓滿召開,“數智賦能”助推西部工業轉型升級2025-07-02
· 中望軟件杭州峰會成功舉辦,“CAD+”賦能浙江智造縱深發展2025-06-25
·中望3D 2026全球發布:開啟設計仿真制造協同一體化時代2025-06-13
·中望軟件攜手鴻蒙、小米共建國產大生態,引領工業設計新時代2025-06-01
·中望軟件2025年度產品發布會圓滿舉行:以“CAD+”推動工業可持續創新2025-05-26
·中望CAD攜手鴻蒙電腦,打造“多端+全流程”設計行業全場景方案2025-05-13
·玩趣3D:如何應用中望3D,快速設計基站天線傳動螺桿?2022-02-10
·趣玩3D:使用中望3D設計車頂帳篷,為戶外休閑增添新裝備2021-11-25
·現代與歷史的碰撞:阿根廷學生應用中望3D,技術重現達·芬奇“飛碟”坦克原型2021-09-26
·我的珠寶人生:西班牙設計師用中望3D設計華美珠寶2021-09-26
·9個小妙招,切換至中望CAD竟可以如此順暢快速 2021-09-06
·原來插頭是這樣設計的,看完你學會了嗎?2021-09-06
·玩趣3D:如何巧用中望3D 2022新功能,設計專屬相機?2021-08-10
·如何使用中望3D 2022的CAM方案加工塑膠模具2021-06-24
·CAD怎么提取動態塊信息2024-11-25
·CAD打開圖紙很卡怎么辦2024-03-19
·CAD怎么樣設置打印樣式2019-07-18
·DXF文件用什么軟件打開2020-03-20
·在CAD中如何設置墻體多線樣式2016-07-20
·CAD格式刷在哪2015-11-25
·CAD如何繪制單點和多點2020-06-30
·CAD圖案填充選項卡常用選項介紹2018-01-23





