CAD水洗塔凈化工程設計案例分享
現在很多工業方面的施工平面圖都是可以用CAD來實現的,例如:重工業行業的除塵、凈化、通風、中央空調等,下面為大家分享一個工業當中常見的水洗塔凈化工程的案例。
在除塵領域當中,水洗塔的除塵效果也是非常環保的,它比較適合小型的車間凈化使用,在行業中大面積的凈化一般都是采用其它更大型的凈化裝置來做為主機,這樣才能達到更好的效果。

在這個行業中,如果你想要設計出這么一套凈化方案出來的話,首先,你必須要對工業凈化原理和設備的使用特點有一定的了解才能做到,要不然的話,你無法成功的設計出一套合理的設計方案;其實,這和每個行業的CAD設計都是有關系的,假如你是室內設計的,你必然也是要對家居的擺放以及裝修有一點的了解,不管你從事哪一行業的設計,對本身設計行業的了解是必修課。
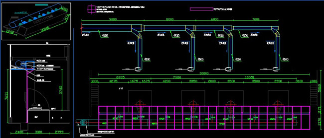
今天這個案例主要是講得是一個工業熔解爐車間的空氣凈化系統,它主要的功能就是使車間設備產生的有毒或者有污染的氣體進行凈化排放,達到環保的目的。

設計所需元素:
一、主體設備(抽風機+水洗塔)
要想讓里面的有害空氣出來,首先要有個抽風機,即行業專業叫法“離心抽風機”,然后經過抽風機后再接入環保水洗塔,這樣所排出來的空氣才算是環保的。

二、抽風管道
空氣是氣體物質,要想輸出,肯定必須得有管道才行,至于這個管道是采用什么材質來設計一般是需要根據客戶的要求的,主要有鍍鋅板材和不銹鋼板材兩種。
三、抽煙罩
這個在抽風系統中以不同的角色出現,一般沒有規定,主要根據現場而定,像這個工程案例,它就比較適合用抽風罩去進行集氣。
以上就是水洗塔凈化工程的平面圖繪制的方案,希望大家的喜歡。
推薦閱讀:CAD制圖初學入門
推薦閱讀:3D打印機
· 先鋒匯聚|8月27日-28日廣州,邀您共赴工業軟件國際盛會2025-08-14
· 中望軟件數智化轉型峰會廈門站成功舉辦,“CAD+”戰略賦能福建工業可持續創新2025-07-31
· 中望軟件西安峰會圓滿召開,“數智賦能”助推西部工業轉型升級2025-07-02
· 中望軟件杭州峰會成功舉辦,“CAD+”賦能浙江智造縱深發展2025-06-25
·中望3D 2026全球發布:開啟設計仿真制造協同一體化時代2025-06-13
·中望軟件攜手鴻蒙、小米共建國產大生態,引領工業設計新時代2025-06-01
·中望軟件2025年度產品發布會圓滿舉行:以“CAD+”推動工業可持續創新2025-05-26
·中望CAD攜手鴻蒙電腦,打造“多端+全流程”設計行業全場景方案2025-05-13
·玩趣3D:如何應用中望3D,快速設計基站天線傳動螺桿?2022-02-10
·趣玩3D:使用中望3D設計車頂帳篷,為戶外休閑增添新裝備2021-11-25
·現代與歷史的碰撞:阿根廷學生應用中望3D,技術重現達·芬奇“飛碟”坦克原型2021-09-26
·我的珠寶人生:西班牙設計師用中望3D設計華美珠寶2021-09-26
·9個小妙招,切換至中望CAD竟可以如此順暢快速 2021-09-06
·原來插頭是這樣設計的,看完你學會了嗎?2021-09-06
·玩趣3D:如何巧用中望3D 2022新功能,設計專屬相機?2021-08-10
·如何使用中望3D 2022的CAM方案加工塑膠模具2021-06-24
·CAD建筑版如何對圖塊進行替換?2024-05-30
·CAD如何畫三維螺紋2016-09-29
·CAD如何恢復到初始狀態2025-03-06
·CAD區域填充失敗怎么辦2019-01-16
·CAD如何調整打印方向2020-02-20
·CAD中如何設置倒圓角時角不被修掉2021-04-28
·怎么修改CAD標注尺寸的比例因子2018-04-20
·CAD水暖電啟動提示:“操作系統當前的配置不能運行此應用程序”怎么辦2024-09-02





