在制圖的時候時常需要對圖形進行偏移、旋轉等操作,有些初學者可能會有些陌生,尤其是在偏轉角度不確定的時候該怎么辦呢?比如下圖,要怎么把矩形1旋轉至2所示的角度?今天就來學習下CAD怎么旋轉圖形。

首先將矩形選中,在命令行中輸入RO快捷鍵,然后單擊空格鍵。

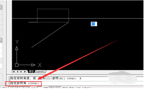
進行基點的指定,此時命令板中會出現命令,選擇參照(R),空格確定。

此時就會發現命令板中顯示“指定參照角”;

接下來進行旋轉點的指定,鼠標單擊分別選擇矩形下方左右兩個點;

如下圖所示,此時命令板中會出現“指定新角度”,選中新角度的另一邊就完成矩形旋轉操作啦!



是不是很簡單呢?講解就到這里啦,希望對你有幫助~
推薦閱讀:CAD制圖初學入門
推薦閱讀:CAD下載
· 破解精密連接難題!ZWORLD中望全球生態大會連接器行業論壇即將開啟2025-08-18
· 先鋒匯聚|8月27日-28日廣州,邀您共赴工業軟件國際盛會2025-08-14
· 中望軟件數智化轉型峰會廈門站成功舉辦,“CAD+”戰略賦能福建工業可持續創新2025-07-31
· 中望軟件西安峰會圓滿召開,“數智賦能”助推西部工業轉型升級2025-07-02
· 中望軟件杭州峰會成功舉辦,“CAD+”賦能浙江智造縱深發展2025-06-25
·中望3D 2026全球發布:開啟設計仿真制造協同一體化時代2025-06-13
·中望軟件攜手鴻蒙、小米共建國產大生態,引領工業設計新時代2025-06-01
·中望軟件2025年度產品發布會圓滿舉行:以“CAD+”推動工業可持續創新2025-05-26
·玩趣3D:如何應用中望3D,快速設計基站天線傳動螺桿?2022-02-10
·趣玩3D:使用中望3D設計車頂帳篷,為戶外休閑增添新裝備2021-11-25
·現代與歷史的碰撞:阿根廷學生應用中望3D,技術重現達·芬奇“飛碟”坦克原型2021-09-26
·我的珠寶人生:西班牙設計師用中望3D設計華美珠寶2021-09-26
·9個小妙招,切換至中望CAD竟可以如此順暢快速 2021-09-06
·原來插頭是這樣設計的,看完你學會了嗎?2021-09-06
·玩趣3D:如何巧用中望3D 2022新功能,設計專屬相機?2021-08-10
·如何使用中望3D 2022的CAM方案加工塑膠模具2021-06-24
·CAD中怎樣去掉圓弧標注的延長線2015-12-29
·CAD尺寸標注快捷鍵是什么?2020-02-21
·CAD如何調整多段線的寬度2025-06-26
·CAD夾點編輯基本圖元2018-01-23
·在高版本Word中插入CAD圖形后如何裁減2016-03-14
·CAD樣條曲線及其選項設置2018-01-16
·CAD布局的相關知識2017-09-07
·在CAD中如何刪除圓的一部分2019-05-23





