【樣條曲線】是常常用來表示機械制圖中分斷面的部分,還可以在建筑圖中表示地形地貌等。啟動【樣條曲線】命令的方式有以下的幾種。
1.命令行:輸入SPLINE/SPL命令
2.菜單欄:選擇【繪圖】--【樣條曲線】菜單命令
3.工具欄:單擊工具欄中的【樣條曲線】圖標 
下面我們舉個例子,我們該如何操作繪制樣條曲線。
1.我們打開素材,

2.我們沿著A-E的路線去繪制我們的樣條曲線。

3.我們選在【繪圖】--【樣條曲線】菜單命令

4.我們完成操作時,是如下圖的。

如何去編輯我們繪制好的樣條曲線呢?
我們可以看到我們繪制出來的樣條曲線并不吻合旁邊的那條曲線。這時候我們就可以利用樣條曲線編輯命令對我們的曲線進行編輯,異化的符合我們需要的樣條曲線。
啟動【編輯樣條曲線】命令的方式有以下幾種。
1.命令行:輸入SPLINEDIT/SPE命令
2.菜單欄:選擇【修改】--【對象】--【樣條曲線】菜單命令。
啟動樣條曲線編輯命令后,命令行就會出現如下的命令提示

這個命令行部分選項含義如下。
1. 閉合樣條(C)
選取該選項,可以將樣條曲線封閉。
2. 頂點(V)
選擇該項之后,被選擇的樣條曲線將顯示其頂點,這是后可以根據命令行提示對其進行編輯。
3.反向(E)
這個選項可以將樣條曲線的起點和終點進行翻轉,
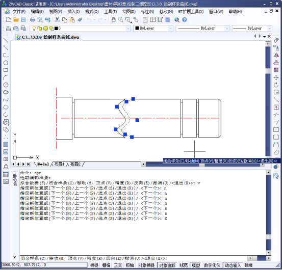
我們來舉個例來看看,如何靈活運用該命令吧。
1. 我們通過輸入命令SPE,得到下圖

2. 我們選取我們需要編輯的樣條曲線,進行操作。參考下圖。

5.完成上面操作后,我們就能得到我們需要的樣條曲線了。