CAD圖紙一定需要比例的原因分析
小編認為,一張圖紙就像是一份嚴謹又詳細的產品說明書,其意義就在于將單個工作成果進行總結展示,并以此為依據,提供給各方進行協助配合,從而達到共同的目標。而比例這一特性,就是出于圖紙嚴謹這一特性而產生的。下面以樣例圖紙為例,說明比例的含義:

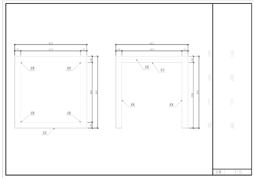
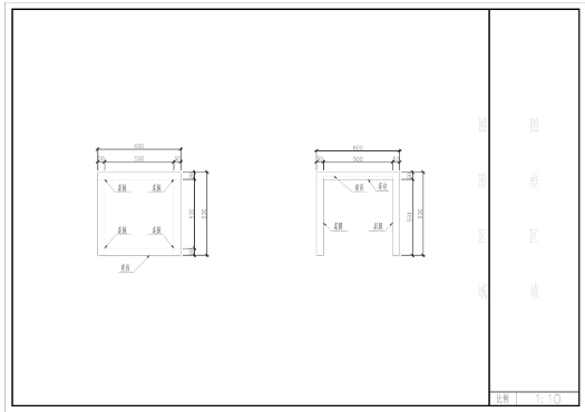
上圖與下圖為同一張桌子在不同比例的A3圖紙下的樣子,可以看到,在比例由1:5變成1:10后,桌子在圖中的大小也變成了原來的1/2。需要注意的是,圖中實體類的圖元大小發生了改變,而如標注、說明文字等注釋類的圖元,其大小卻是不變的.

假設一個制作家具的人拿到這份圖紙后,不需要任何其他的面對面溝通,他就能夠知道,我們需要制作一個方形的桌子 ,桌子變長均為600毫米,有四條腿,每條腿長550毫米,依靠四條寬高均為50毫米的桌邊與桌面相連。其中,方形這個信息是由圖中的實體形狀線獲得的,而尺寸由圖中的尺寸標注上寫的數字獲取,每個東西分別是什么功能,由圖中的說明文字獲得解釋,一份粗糙的說明書大概就完成了。
那么,在一份具有足夠準確尺寸標注的圖紙里,我們還需要按照比例來繪制這些圖形的原因是什么?關鍵就是在于第一步的實體形狀線,只有在按照比例繪制的圖紙里,我們才能第一眼就對這個物體有一個直觀的認識,比如這是一個正方形而不是長方形,比如這張桌子的桌面厚度與他的高度相比是非常小的,桌子下面有較為充裕的空間,避免了潛意識內的錯誤認識而引起協作各方不必要的工作量。
同時,出于節約紙張的目的,我們自然是想在一張圖內放下實體形狀越多越好,字體越小越好,比例的分母自然也是越大越好。然而,人眼的識別能力是有限的,過于微小的字體和圖形,在閱讀起來是極容易出現幻覺和誤差的,所以,每張圖比例的產生的需要根據圖紙的大小、注釋文字的多少進行合理的分配,在識別難易度與信息量之間找到一個平衡點。
推薦閱讀:CAD中對齊和三維對齊的操作步驟
推薦閱讀:3D打印機原理
· 先鋒匯聚|8月27日-28日廣州,邀您共赴工業軟件國際盛會2025-08-14
· 中望軟件數智化轉型峰會廈門站成功舉辦,“CAD+”戰略賦能福建工業可持續創新2025-07-31
· 中望軟件西安峰會圓滿召開,“數智賦能”助推西部工業轉型升級2025-07-02
· 中望軟件杭州峰會成功舉辦,“CAD+”賦能浙江智造縱深發展2025-06-25
·中望3D 2026全球發布:開啟設計仿真制造協同一體化時代2025-06-13
·中望軟件攜手鴻蒙、小米共建國產大生態,引領工業設計新時代2025-06-01
·中望軟件2025年度產品發布會圓滿舉行:以“CAD+”推動工業可持續創新2025-05-26
·中望CAD攜手鴻蒙電腦,打造“多端+全流程”設計行業全場景方案2025-05-13
·玩趣3D:如何應用中望3D,快速設計基站天線傳動螺桿?2022-02-10
·趣玩3D:使用中望3D設計車頂帳篷,為戶外休閑增添新裝備2021-11-25
·現代與歷史的碰撞:阿根廷學生應用中望3D,技術重現達·芬奇“飛碟”坦克原型2021-09-26
·我的珠寶人生:西班牙設計師用中望3D設計華美珠寶2021-09-26
·9個小妙招,切換至中望CAD竟可以如此順暢快速 2021-09-06
·原來插頭是這樣設計的,看完你學會了嗎?2021-09-06
·玩趣3D:如何巧用中望3D 2022新功能,設計專屬相機?2021-08-10
·如何使用中望3D 2022的CAM方案加工塑膠模具2021-06-24
·CAD如何關閉實體填充顯示?2021-04-28
·CAD怎樣批量修改字體2016-01-15
·CAD臨時追蹤功能的使用方法2023-11-10
·CAD怎么打開DWF文件2018-05-22
·CAD怎么打斷圖形2017-03-15
·CAD圖形切點的選擇2019-12-30
·CAD中鼠標的作用2020-06-18
·CAD菜單欄消失了了如何恢復2025-05-12





