CAD如何使用快速標注創建一個并列標注
在CAD中,快速標注命令可以用來快速創建或編輯一系列標注。當需要創建一系列基線、連續或并列標注,或者為一系列圓或圓弧創建標注時,快速標注命令特別有用。接下來我們一起來看一下怎樣用快速標注創建一個并列標注吧!
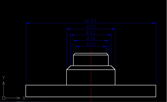
1. 如下圖所示是一個泵蓋圖形,我們要使用快速標注命令為這個泵蓋創建一個并列標注的直徑標注。因為要創建的是直徑標注,而拾取的標注對象全部是線性對象,因此需要給全部標注增加一個直徑符號的前綴,添加方法請看接下來的步驟。

2. 依次點擊CAD編輯器上方的【標注】——【標注樣式】按鈕,彈出【標注樣式管理器】對話框,如下圖所示。

3. 確保在“樣式”列表框中選中“GB-35”,點擊【替代】按鈕,彈出【替代當前標注樣式:GB-35】對話框,選擇其中的“主單位”選項卡,在“線性標注”中的“前綴”文本框中輸入直徑符號“Ф”,我們輸入“%%c”即可。

4. 點擊【確定】按鈕,回到【標注樣式管理器】對話框,再點擊【關閉】按鈕,回到繪圖界面,這樣就完成了對直徑符號的添加。當前標注替代樣式的線性標注將臨時加上直徑符號,再重新選擇這個“GB-35”樣式時,將恢復為沒有前綴。
5. 依次點擊【標注】——【快速標注】按鈕,使用窗口選擇方式選中泵蓋上部的全部圖形,如下圖所示。

6. 根據命令行提示“選擇要標注的幾何圖形”時,直接按回車鍵結束選擇,下一步會顯示當前標注形式為“連續”,我們要在命令行中輸入“S”命令調整為并列標注,然后向上拉出標注尺寸線,自定義合適的尺寸線位置。

7. 完成后的快速并列標注效果如下圖所示。

以上就是用快速標注創建一個并列標注的例子,快速標注可以應用于基線、連續、并列、坐標、半徑、直徑等標注形式,但是有時候快速標注的結果不能完全達到我們的要求,這時就需要進行局部的調整。
推薦閱讀:國產CAD
推薦閱讀:正版CAD
· 先鋒匯聚|8月27日-28日廣州,邀您共赴工業軟件國際盛會2025-08-14
· 中望軟件數智化轉型峰會廈門站成功舉辦,“CAD+”戰略賦能福建工業可持續創新2025-07-31
· 中望軟件西安峰會圓滿召開,“數智賦能”助推西部工業轉型升級2025-07-02
· 中望軟件杭州峰會成功舉辦,“CAD+”賦能浙江智造縱深發展2025-06-25
·中望3D 2026全球發布:開啟設計仿真制造協同一體化時代2025-06-13
·中望軟件攜手鴻蒙、小米共建國產大生態,引領工業設計新時代2025-06-01
·中望軟件2025年度產品發布會圓滿舉行:以“CAD+”推動工業可持續創新2025-05-26
·中望CAD攜手鴻蒙電腦,打造“多端+全流程”設計行業全場景方案2025-05-13
·玩趣3D:如何應用中望3D,快速設計基站天線傳動螺桿?2022-02-10
·趣玩3D:使用中望3D設計車頂帳篷,為戶外休閑增添新裝備2021-11-25
·現代與歷史的碰撞:阿根廷學生應用中望3D,技術重現達·芬奇“飛碟”坦克原型2021-09-26
·我的珠寶人生:西班牙設計師用中望3D設計華美珠寶2021-09-26
·9個小妙招,切換至中望CAD竟可以如此順暢快速 2021-09-06
·原來插頭是這樣設計的,看完你學會了嗎?2021-09-06
·玩趣3D:如何巧用中望3D 2022新功能,設計專屬相機?2021-08-10
·如何使用中望3D 2022的CAM方案加工塑膠模具2021-06-24
·CAD怎么提取動態塊信息2024-11-25
·CAD怎么計算二維圖形的面積和周長2019-07-16
·CAD怎么將相連的線條合并2024-12-03
·CAD中怎么更改圖層名稱2021-04-30
·CAD線寬顯示一樣寬度的解決辦法2019-01-02
·CAD如何使用打斷合并命令 2020-07-13
·CAD中如何利用線性標注來標注直徑符號2015-12-21
·CAD怎么繪制四棱錐體2018-06-27





